GIÁ BÁT NÂNG HẠ NAN DET INOX MỜ FULL SUS304
            Giá bát nâng hạ nan dẹt inox mờ full SUS304 là sản phẩm phụ kiện bếp cao cấp, được thiết kế giúp bạn dễ dàng lưu trữ và lấy bát đĩa từ các tủ bếp cao mà không cần với tay. Với chất liệu inox mờ SUS304 cao cấp, sản phẩm không chỉ bền đẹp, chống gỉ sét mà còn mang lại sự tiện lợi và an toàn khi sử dụng nhờ cơ chế nâng hạ thông minh.
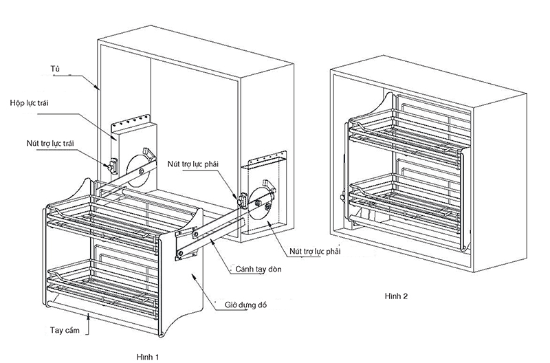
GIÁ BÁT NÂNG HẠ NAN DET INOX MỜ GROB CÓ GÌ ĐẶC BIỆT?
Đầu tiên giá bát nâng hạ thông thường được cấu tạo gồm:
- Rổ: gồm 2 tầng được làm bằng chất liệu SUS201, SUS304
- Bộ khung chịu lực: Được làm bằng chất liệu hợp kim thép phủ Nano.
 
                        Cấu tạo giá bát nâng hạ
Những vấn đề thường gặp phải khi sử dụng giá bát nâng hạ:
- Han gỉ: Sau khi sử dụng một thời gian bề mặt inox (trừ SUS304) sẽ xuất hiện han gỉ. Có rất nhiều nguyên nhân dẫn đến han gỉ nhưng chủ yếu là do môi trường hoặc một vài nguyên nhân khách quan: Tiếp xúc với các dung dịch có tính axit mạnh...
- Bong lớp phủ Nano: Sau một thời gian sử dụng lớp phủ Nano sẽ yếu dần và sẽ bị bong tróc dẫn đến bề mặt thép bên trong sẽ bị lộ ra ngoài. Bề mặt thép sẽ tiếp xúc trực tiếp với môi trường dẫn đến sẽ bị han gỉ sau một thời gian.
Giá bát nâng hạ nan dẹt inox mờ GROB có gì đặc biệt
     Những vấn đề mà giá bát nâng hạ thôi thường gặp phải được Giá bát nâng hạ Oval GROB nâng cấp và cải tiến tất cả đều làm bằng inox SUS304 từ khung đến rổ để giúp cho quá trình sử dụng sản phẩm không bị han gỉ.
TÍNH NĂNG CỦA GIÁ BÁT NÂNG HẠ NAN DET
Chất liệu inox SUS304 cao cấp:
- 
Bề mặt inox mờ sang trọng: Inox SUS304 với lớp hoàn thiện mờ giúp sản phẩm trông thanh lịch, chống bám vân tay, giữ giá bát luôn mới mẻ và sạch sẽ. 
- 
Chống gỉ sét và ăn mòn tuyệt đối: Inox SUS304 đảm bảo độ bền bỉ, không bị gỉ sét ngay cả trong môi trường ẩm thấp của nhà bếp. 
Thiết kế nan dẹt hiện đại và chắc chắn:
- 
Nan dẹt chịu lực tốt: Thiết kế nan dẹt không chỉ giúp sản phẩm trông tinh tế mà còn tạo sự ổn định, phù hợp để chứa nhiều bát đĩa nặng mà không bị cong vênh. 
- 
Cơ chế nâng hạ tiện dụng: Giá bát có thể kéo xuống nhẹ nhàng, giúp bạn dễ dàng lấy đồ dù ở vị trí cao. 
Hệ thống giảm chấn êm ái:
Dễ dàng lắp đặt và vệ sinh:
- 
Dễ lắp đặt, phù hợp với nhiều loại tủ bếp: Thiết kế linh hoạt, có thể lắp đặt trong nhiều loại tủ bếp với các kích thước khác nhau. 
- 
Bề mặt inox mờ dễ lau chùi: Bề mặt inox mờ ít bám bẩn và dễ vệ sinh, giúp giữ giá bát luôn sạch sẽ và sáng đẹp. 
LỢI ÍCH KHI SỬ DỤNG GIÁ BÁT NÂNG HẠ NAN DET.
- 
Tối ưu không gian bếp trên cao: Giúp tận dụng không gian trong tủ bếp trên, tiết kiệm diện tích và giữ bát đĩa luôn gọn gàng, ngăn nắp. 
- 
Dễ dàng thao tác, tiết kiệm công sức: Với cơ chế nâng hạ thông minh, bạn không cần với tay cao, chỉ cần nhẹ nhàng kéo xuống là có thể lấy đồ dùng. 
- 
Tăng tính thẩm mỹ và tiện nghi: Thiết kế inox mờ sang trọng, tinh tế, giúp căn bếp trở nên hiện đại và cao cấp hơn. 
LẮP ĐẶT GIÁ BÁT NÂNG HẠ NHƯ THẾ NÀO?
     Giá bát nâng hạ rất dễ dàng lắp lắp đặt, yêu cầu thông số khoang tủ lắp đặt phải chính xác.

                                                                   Các bước lắp đặt giá bát nâng hạ

Thông sô lắp đặt giá bát nâng hạ
     Tùy vào nhu cầu sử dụng và kích thước của từng căn bếp sẽ có nhiều kích thước phụ kiện giá bát đĩa nâng hạ 2 tầng inox sus304 khác nhau. Mọi thông tin về sản phẩm được thể hiện rõ qua bảng sau:

  THÔNG SỐ GIÁ BÁT NÂNG HẠ INOX SUS304 NAN OVAL GROB
CÔNG TY TNHH ĐẦU TƯ KIM KHÍ THÔNG MINH VIỆT ĐỨC
Hotline: 1900 066 616
Website: https://grob.com.vn/
Địa chỉ:
GROB HÀ NỘI: Số 9, Ngõ 139 Bằng Liệt, KĐT Linh Đàm, Hoàng Mai, Hà Nội. ( Đối diện Trường THCS Chu Văn An Linh Đàm)
GROB ĐÀ NẴNG: 41-43 Võ Thành Vỹ, Xã Hòa Phước, Huyện Hòa Vang Thành Phố Đà Nẵng.
GROB TP. HCM: 551/162 Lê Văn Khương, Phường Hiệp Thành, Quận 12, TP Hồ Chí Minh